Awards + Commendations

Graphic Design

1984

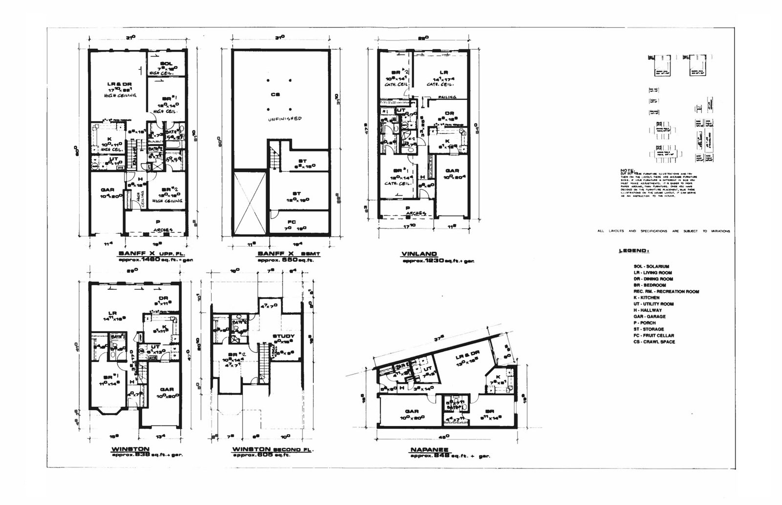
Urban Residential

1992

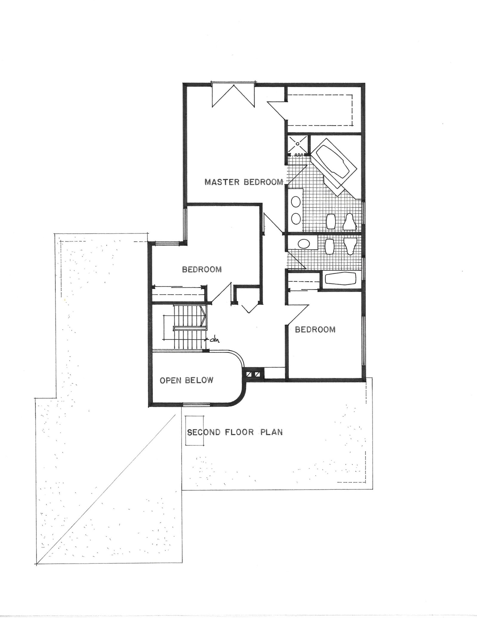
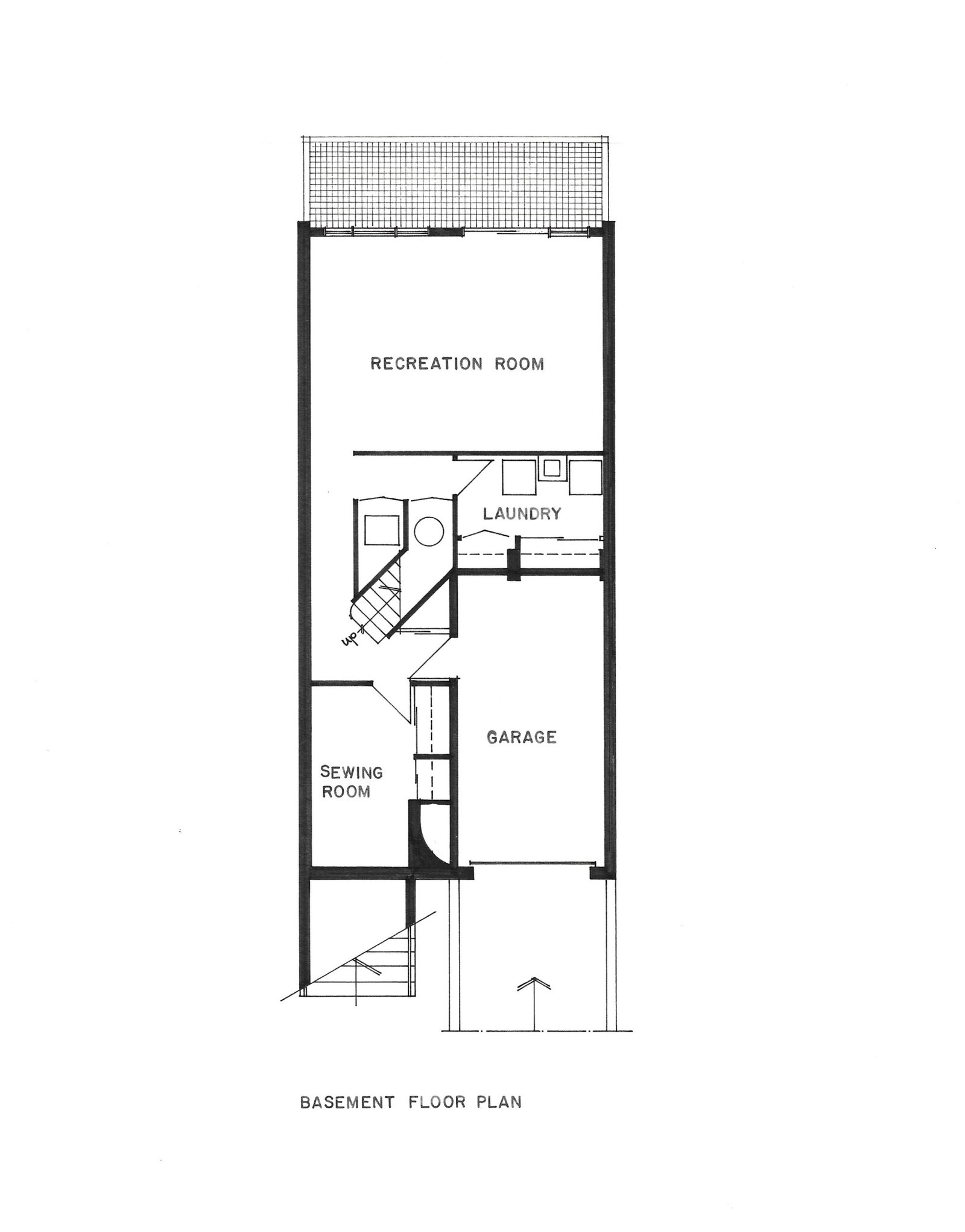
Rural Residential

2010

Mixed-Use

Urban Multi-Residential + Storefront.

1986-1992

Urban Restoration – Village Streetscape Renewal and Infill.

Residential + Storefront

1992-1993

Urban Planning – Town Building

Urban Multi-Residential + Commercial

2005

Rural Residential

1993

Cabin

1990

Urban Flats

2002

Urban Residential

2000

Commercial Renovation

2007

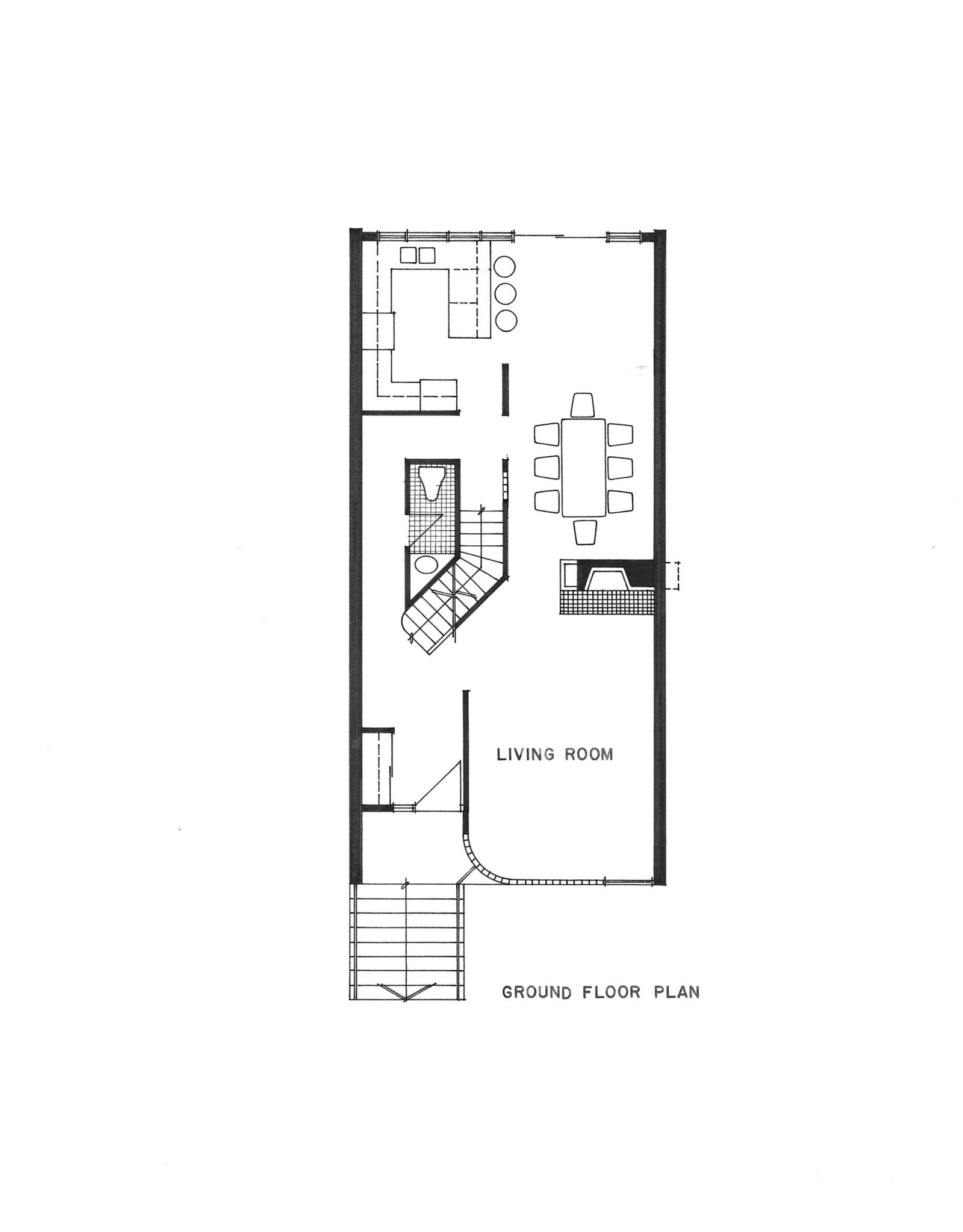
Urban Residential

1986

Urban Residential

1979-1988

Urban Planning – Seniors Village

Apartments + Offices + Recreational + Detached Housing

1992

Offices

Bauhaus + Brut

2013

Interior Remodel – Urban Residential

Entry + Kitchen + Bedrooms

1986

Urban Residential

Addition + Interior Remodel

2010

Urban Residential

For your Building Needs... Call An Architect First.

Get in touch.

We’ll design your dream into reality.